因积雪导致的建筑结构损毁和人员伤亡事故时有发生,近年来频繁出现的极端气候使这一问题更加突出,正确预测屋盖上的雪荷载对保障结构安全非常重要。
屋盖结构雪荷载的模拟,涉及流体力学、热力学、风工程学、多相流、结构力学及试验技术等领域,是一个典型的多学科交叉研究方向。建立屋盖结构雪荷载模拟的精细化方法,对提高结构抵抗雪灾能力具有重要的理论意义和实用价值。
  
积雪压塌的佳木斯体育馆(左图,2023年)积雪压塌的日本体育馆(右图,2005年)
内容简介
《屋盖结构雪荷载》由科学出版社出版。全书共七章,系统介绍了屋盖结构雪荷载研究和工程应用的基础知识、基本原理和物理及数值模拟方法,内容包含地面雪压、屋盖结构雪荷载的精细化预测及结构在雪荷载作用下的反应等。本书注重工程应用,包含了许多试验和计算分析实例。
图书目录

精彩内容节选
第1章 绪论
近年来暴风雪等极端天气经常出现,导致国内外每年都发生雪灾造成的建筑结构损坏和人员伤亡的事故。

河南省南阳市大型加油站被暴雪压塌(2018年)

美国明尼苏达维京人队体育馆被积雪毁坏(2010年)
建筑屋面的积雪暴露在复杂的自然环境中,受到各种因素的影响。总体而言,积雪受到的影响因素可以归结为两个过程:热力学过程和风吹雪过程。

屋面雪荷载影响因素
第2章 地面雪压模拟
融雪模型是模拟地面雪压,以及分析雪层与周边环境能量交换的有力工具。雪层内部、雪面与外部环境之间存在复杂的能量交换,这是雪积累和融雪的重要驱动力。

雪面的能量传递和转换
研究地面雪压的关键之一是获取地面雪压样本,即积雪深度和雪水当量。然而,许多气象站没有对此类数据进行长期观测。融雪模型基于气温、湿度、降水、风速等气象参数,模拟积雪在自然环境影响下的堆积消融过程,从而能够弥补气象站测量数据不足的问题。本书利用多层融雪模型模拟获得多年地面雪压年最大值样本;再结合概率模型和参数估计方法分析,得到一定保证率下的地面雪压。

多层融雪模型涉及的能量通量和质量通量

计算地面雪压的基本框架
第3章 地面雪运动模拟
总结了经典文献中风吹雪特性的研究成果,让从事雪冰工程的研究人员迅速理解和掌握原本比较抽象的概念。雪颗粒的输运过程主要分为三类:蠕移、跃移及悬移。蠕移指雪颗粒在雪层表面滚动、滑移。跃移是指雪颗粒重复跃起下落的运动。当风速更大时,雪颗粒被湍流旋涡向上带起,沿着来流方向飘移到更远的距离,这个过程称为悬移。

雪颗粒输运模式
欧拉-欧拉方法中雪相按连续相处理,雪面上方可分为跃移和悬移两种不同的输送方程;欧拉-拉格朗日方法中将雪相视为离散的质点,通过力学平衡关系运用牛顿运动定律来获得雪颗粒的运动轨迹,考虑了流体启动、颗粒在空气中运动、击溅过程、风场反馈等多种运动机理。

欧拉-欧拉方法分层模拟示意图

欧拉-拉格朗日方法中雪颗粒运动的基本过程
第4章 屋面迁移雪荷载的数值模拟
对以往研究中各类风吹雪控制方程进行了比较全面的总结。
雪相控制方程总结

将两相流模拟技术运用于实际的复杂工程项目。北京首都国际机场3号航站楼地处北京市郊,雪荷载是其结构设计的控制荷载之一。屋面上积雪在风荷载作用下将发生迁移,可能造成对结构不利的不均匀分布荷载。而根据现行的荷载规范很难确定这样大型复杂建筑屋面的雪压分布。

北京T3A航站楼计算网格划分

0°风向角下T3A 航站楼屋面单位时间内雪压改变量
介绍了有限面积单元法——一种实用的建筑屋面雪荷载模拟方法。有限面积单元法把屋面划分成多个单元格;通过风洞试验或CFD 方法获得屋面的风速和风向;然后根据屋面风速、风向和其他气象资料,确定单元格的雪质量改变量,从而预测屋面雪荷载分布。

屋面有限面积单元网格及雪质量改变量计算原理示意图
第5章 屋面迁移雪荷载的风洞试验
对两相流试验模拟中绕不开的话题-抽象的相似理论进行了系统的归纳并对其有进一步的发展。风吹雪相似参数大致可以归纳为流场相似、雪颗粒起动相似、运动雪颗粒受力状态相似、时间相似及休止角相似。

风致积雪运动需要考虑的相似关系
试验中考虑的相似参数

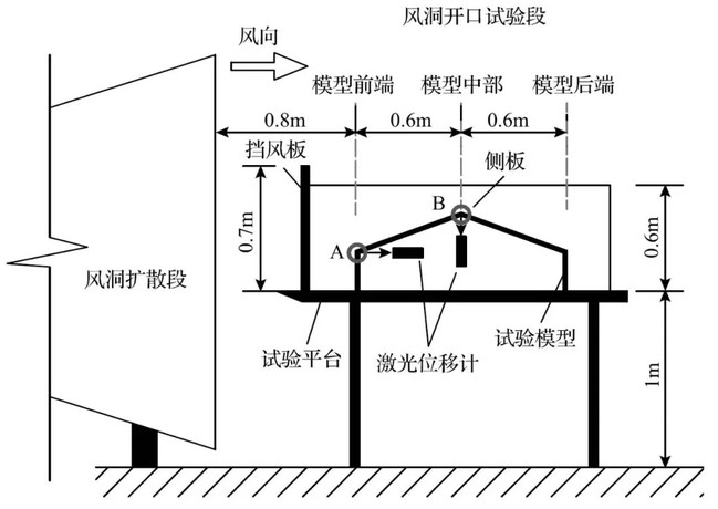
在满足相似关系的前提下,可以采用替代雪颗粒或人造雪颗粒开展屋面迁移雪荷载的风洞试验。试验利用高精度的激光位移计,对屋盖表面的积雪变化进行测量。

风吹雪试验模型和测量设备
第6章 屋面滑落雪荷载
滑落雪荷载是国际主要荷载规范中的重要内容。基于建筑屋面融雪模型和建筑屋面积雪滑落的判断条件,介绍屋面滑落雪荷载的模拟方法,以及防止屋面积雪滑落的措施。

高低屋面积雪滑落示意图

屋面上的防雪栅
第7章 结构效应及可靠度
对风雪联合作用下结构效应,以及雪荷载作用下屋盖结构的可靠度进行了探讨。风不仅激发屋盖结构的振动,还会引起屋盖上雪颗粒的运动;屋面上大量雪颗粒的迁移可能引起屋面风压分布的改变和屋面积雪质量的变化,风-屋盖-积雪三者构成了一个复杂的耦合系统。

风雪联合作用下屋盖结构振动

风雪联合作用下屋盖结构气弹模型的风洞试验
作者介绍

周晅毅,同济大学土木工程学院教授,博士生导师,同济大学土木工程防灾全国重点实验室成员,兼任土木工程学会桥梁及结构工程分会风工程学术委员会委员,国际标准化组织(ISO)TC98/SC3/WG1雪荷载专家组成员。担任第一届全国雪冰工程学术研讨会(2018年)以及第九届国际雪工程会议(2024年)的大会主席。
研究方向包括:结构的风雪荷载、面向复杂工程的计算流体力学(CFD)模拟方法、新能源产业的防灾减灾。参编行业和协会标准两部。作为负责人承担了5项国家自然科学基金项目。负责了北京大兴国际机场航站楼、乌鲁木齐新机场航站楼、重庆江北国际机场 T3A 航站楼、深圳机场T3 航站楼、青岛新机场航站楼、哈尔滨富力江湾新城等多个重大工程的风雪荷载研究项目。在《Building and Environment》、《Structural Safety》、《Journal of Wind Engineering and Industrial Aerodynamics》、《Cold Regions Science and Technology》、《土木工程学报》、《建筑结构学报》、《工程力学》等各类学术刊物上发表论文100余篇。2022年受风工程领域的顶级国际期刊JWEIA主编的邀请,发表一篇关于雪工程研究进展的综述文章。

顾明,同济大学教授。长期从事风工程和风雪工程研究,从上世纪80年代始,在国内开拓了大跨桥梁、高层建筑、大跨空间结构、低矮建筑及重大工程结构的抗风理论和方法以及风洞试验和CFD中的很多重要研究方向,负责和参加了数百项国家级基础研究项目、国际合作项目及实际工程的抗风研究,其中包括国家自然科学基金重大和重点项目、基金委创新群体科学基金和重大研究计划重点项目、日本文部省项目、香港RGC项目,以及上海“东方明珠”广播电视塔、金茂大厦、上海南浦大桥、杨浦大桥、上海世博轴、广州新电视塔、首都机场航站楼等数十个重大工程的抗风研究。创建国内第一个结构风工程学科,培养博士后16名,博士和硕士研究生一百多名。发表期刊和学术会议论文一千余篇,其中SCI论文二百余篇,SCⅠ他引约五千次,连续十年入选“中国高被引学者榜单”。1993年经国务院学位委员会审批为博士生导师,1994年入选原国家教委首批“跨世纪优秀人才计划”,同年获中国首届“国氏”博士后奖(全国十名),1997年获国家杰出青年基金,1999年受聘长江学者。
相关链接
专著出版 ||《大跨度桥梁涡致振动效应、原理及气动控制措施》
图文:吴 悦
审核:周晅毅
版权所有 同济大学土木工程学院桥梁工程系 上海市四平路1239号